Contexte
La commune de Ploubezre a missionné notre équipe pour accompagner la redynamisation de son centre-bourg.
Le périmètre de réflexion s’étend de la zone commerciale de l’intermarché au Nord, à la rue Anjela Duval au Sud, en intégrant la rue du Stade à l’Ouest et la rue Amédée Prigent à l’Est.
Ploubezre est caractérisée par un tissu bâti remarquable, avec une dominante de granite et où l’enclos paroissial se dresse fièrement à la croisée des chemins.
Le réseau dense de haies bocagères et de chemins creux participe à l’identité végétale de la commune.
Enjeux
Afin d’accompagner les dynamiques actuelles et futures, le projet doit tenir compte des enjeux suivants :
- valoriser l’identité bocagère de Ploubezre, en étirant certains motifs paysagers dans les espaces publics ;
- hiérarchiser les déplacements en redonnant plus de place aux modes actifs et ainsi faciliter les accès aux commerces et équipements ;
- gommer le caractère routier imprégné par la RD11, en apaisant considérablement les vitesses de circulation ;
- faciliter et augmenter la capacité d’infiltration des eaux pluviales afin de réduire le ravinement des sols et le débit en aval.
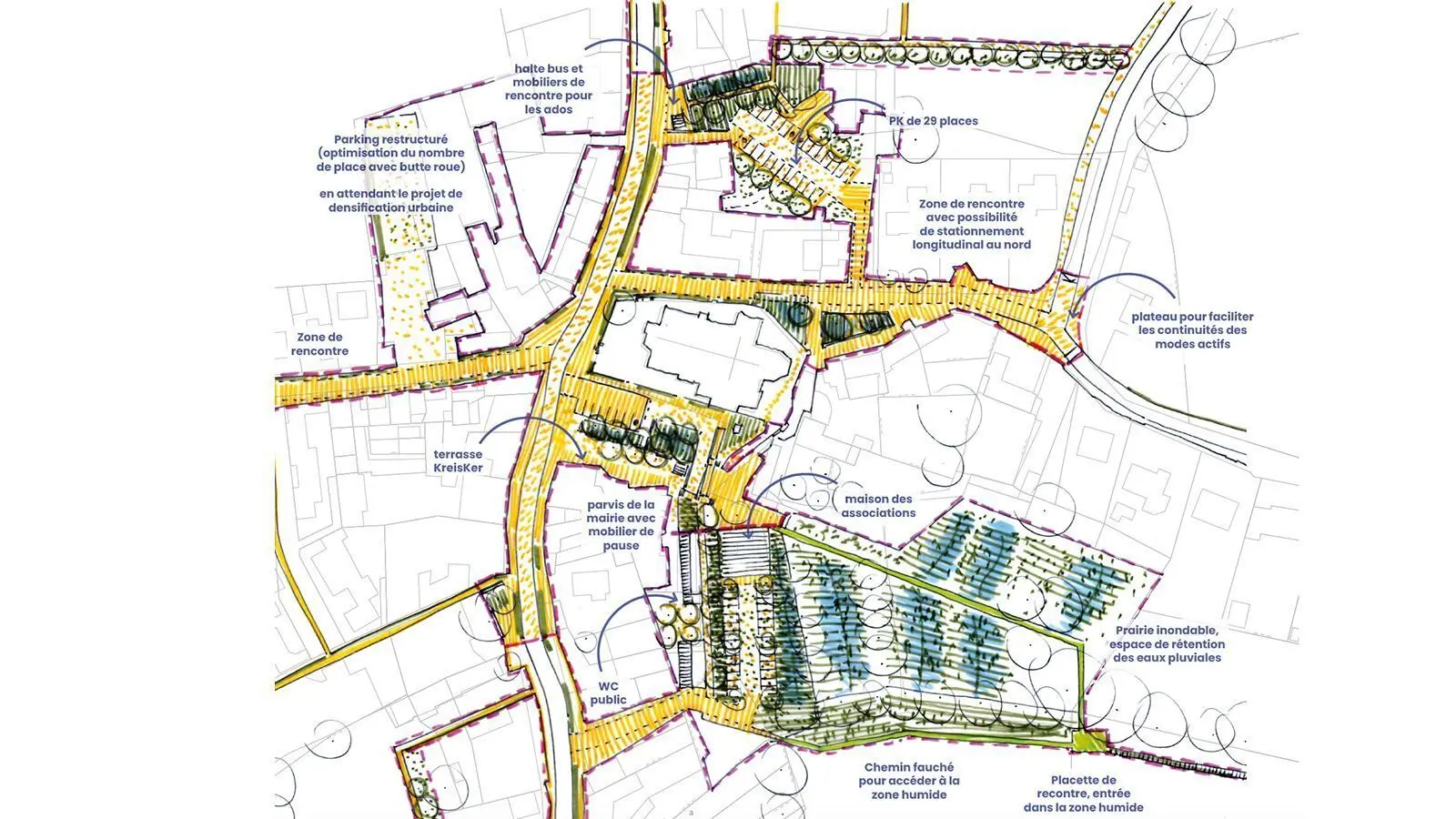
Le projet

Par son installation sur le plateau du Petit Trégor, Ploubezre est orientée sur le vallon du Goas Per et plus loin, la vallée du Léguer.
L’écoulement naturel des eaux pluviales, la topographie relativement plane de l’hyper-bourg, les vues possibles mais aujourd’hui très confidentielles sur le vallon humide, sont autant d’ingrédients fertiles pour imaginer des espaces publics conviviaux et agréables, en toutes saisons.
L’eau et les formes végétales sont indissociables. Dans ce centre très minéral, nous proposons de planter généreusement la place des Anciens Combattants, toutes les placettes des quartiers environnants et les sentes piétonnes créées. Une diversité végétale sera proposée, en mettant une part importante de végétaux comestibles.
Les volumes excédentaires des grandes pluies sont stockés en amont du ruisseau et récoltés dans un bassin de tamponnement à ciel ouvert, propice aux jeux et à la contemplation du cycle naturel de l’eau.
Afin d’apaiser les parcours piétons et cyclistes, la circulation automobile est limitée à 30 km/h. Une aire de rencontre est aménagée autour de l’enclos paroissial, sur les rues Amédée Prigent et Yves Le Cudennec.
Le maillage des chemins piétons existant est étiré dans la partie sud du bourg, pour relier facilement les équipements sportifs et éducatifs aux équipements communaux et aux commerces de l’hyper-bourg.
Un itinéraire sécurisé est proposé aux cyclistes, dans la continuité de la voie verte existante et par l’aménagement d’une vélorue sur la rue du Stade.
Les aires de stationnement sont optimisées, et pour libérer une vaste place piétonne et conviviale devant la mairie, un nouveau parking drainant est créé en lien avec la future maison des Associations.
Echéances
Les études ont été lancées en juin 2023 et ont pris fin en mars 2025 pour raison d’abanbon politique.